|
LH-16/3、20/5吨电动葫芦双梁起重机

主机结构主要由主梁、横梁、大车运行机构。小车及小车运行机构和固定在小车架上的固定式电动葫芦所组成,是一种有轨运行的轻中型起重机,工作制度适用A3-A6,工作环境温度为一25℃-40℃范围内,起重机有16/3t,20/5t,一般跨度为10.5~22.5米,电气设备操纵形式有无线、有线地面操纵和操纵室操纵。
本产品为一般用途起重机,多用于一般机械制造。装配车间和仓库等场所,用来搬运和装卸物料。
本产品不易在易燃、易爆的介质中或具有很大湿度腐蚀性气体的场所工作。也不适用干吊运熔化的金属、有毒物和易燃物的工作。
|
起重量 |
t |
16/3 |
20/5 |
|
跨度 |
m |
10.5 |
13.5 |
16.5 |
19.5 |
22.5 |
10.5 |
13.5 |
16.5 |
19.5 |
22.5 |
|
提升 |
6;8;9;12 |
|
高度电源 |
|
三相交流380V 50HZ |
|
大车运行机构 |
地面 |
速度 |
m/min |
28.72 |
|
电动机 |
型号 |
YSE90L-4D |
|
功率 |
kw |
2*1.5 |
4*1.5 |
2*1.5 |
4*1.5 |
|
操纵室 |
速度 |
m/min |
40 |
|
电动机 |
型号 |
YSE90L-4D |
|
功率 |
kw |
2*1.5 |
4*1.5 |
2*1.5 |
4*1.5 |
|
小车 |
葫芦型号 |
m/min |
6
CD13-9-A2
12 |
6
HC084A-8
12 |
6
CD15-9-A2
12 |
6
HC084A-8
12 |
|
起升速度 |
3.5/8 |
|
运行速度 |
17 |
|
车轮直径 |
mm |
300 |
|
轨道面宽 |
51-70 |
|
最大轮压 |
KN |
11481 |
12200 |
13031 |
13636 |
14704 |
13655 |
14427 |
15355 |
16044 |
17003 |
|
总重量 |
t |
7.6 |
10.3 |
13.6 |
16 |
20.6 |
8.4 |
10.6 |
14.2 |
16.8 |
20.9 |
|
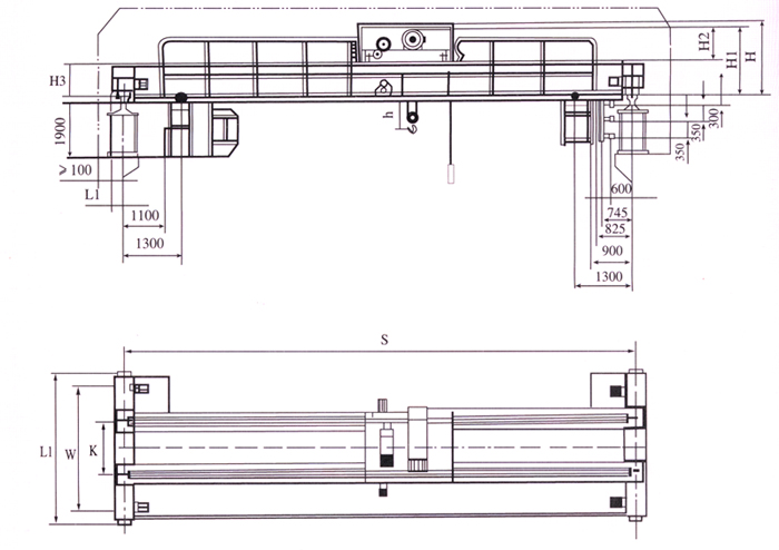
主要尺寸 |
|
|
|
K |
|
1500(H-6m,9m);1800(H-6m,9m) |
|
W |
3000(h-6m,9m);3500(H-12m) |
|
L |
3550(H-6m,9m);4050(H-12m) |
|
L1 |
141 |
|
H |
2004 |
2204 |
2354 |
2408 |
2508 |
2157 |
2304 |
2408 |
2508 |
2658 |
|
H1 |
1765 |
1965 |
2115 |
2169 |
2269 |
1917 |
2067 |
2171 |
2271 |
2421 |
|
H2 |
|
|
H3 |
839 |
1039 |
1189 |
1243 |
1343 |
989 |
1139 |
1243 |
1343 |
1493 |
|
h |
30 |
-170 |
-320 |
-374 |
-474 |
-72 |
-222 |
-326 |
-425 |
-576 |
|