|
LH-5、10吨电动葫芦双梁起重机

本机结构主要由主梁、横梁、大车运行机构、小车及小车运行机构和固定在小车架上的CD1-AZ型或MD1-AZ型固定式电动葫芦所组成,是一种有轨运行的轻重型起重机,工作制度适用A3-AS,工作环境温度为一25℃-40℃范围内,起重量有5t,10t,适用于跨度
7.5-22.5米,电气设备操纵形式有无线、有线地面操纵和操纵室操纵。
本产品为一般用途起重机,多用于一般机械制造、装配车间和仓库等场所,用来搬运和装卸物料。
本产品不易在易燃、易爆的介质中或具有很大湿度腐蚀性气体的场所工作。也不适用于吊运熔化的金属、有毒物和易燃物的工作。
|
起重量
|
跨度
|
提升高度
|
电源
|
大车运行机构 |
小车 |
车轨直径
|
轨道面宽
|
最大轮压
|
总重量
|
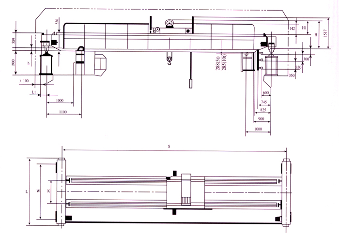
主要尺寸 |
备注
|
|
地面 |
操纵室 |
葫芦型号 |
起升速度 |
运行速度 |
K |
W |
L
|
L1 |
H
|
H1 |
H2 |
h |
|
速度 |
电动机 |
功率 |
速度 |
电动机 |
功率 |
|
|
|
|
t |
m |
|
m/min |
型号Type |
kW |
m/min |
型号Type |
kW |
|
m/min |
mm |
KN |
t |
mm |
|
|
5
|
7.5 |
6;
9;
12; |
三相
交流
380V
50Hz |
28.72 |
YSE802-4D |
2×0.8 |
42.9 |
YSE90L-4D |
2×1.5 |
CD1(MD1)5-(6,9,12)-A2 |
8;8/0.8 |
17 |
Ф300 |
37-70 |
34.43 |
4.9 |
1500 |
3000 |
3550 |
120 |
1163 |
781 |
578 |
-3 |
|
|
10.5 |
38.04 |
5.86 |
17 |
|
13.5 |
40.9 |
6.78 |
107 |
|
16.5 |
44.13 |
7.98 |
187 |
|
19.5 |
47.17 |
9.2 |
267 |
| 22.5 |
50.28 |
10.7 |
347 |
|
10 |
7.5 |
YSE90L-4D |
2×1.5 |
CD1(MD1)10-(6,9,12)-A2 |
7;7/0.7 |
57.28 |
5.6 |
121 |
1374 |
863 |
620 |
47 |
|
10.5 |
62.68 |
6.68 |
187 |
|
13.5 |
67.38 |
8.04 |
277 |
|
16.5 |
72.03 |
9.65 |
427 |
|
19.5 |
76.66 |
11.37 |
527 |
|
22.5 |
80.99 |
13.05 |
607 |
|