|
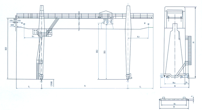
MG型5-50/12.5吨双梁吊钩门式起重机

一、双梁吊钩门式起重机适用露天仓库、料场、铁路货站、港口码头等装卸搬运。还可以配以多种专用钩具进行多种特殊作业。
二、起重机有桥架、大车运行机构、小车、电器设备等组成。桥架采用箱型双梁焊接结构,大车运行机构采用分别驱动,全部机构均在操纵室操纵。
三、起重机导电形式分为电缆和滑线两种,用户可任选一种,图表中数据以滑线为准。
四、本系统起重机正常使用的环境应在一25℃~+40℃范围内,24小时内的平均温度不得超过十35℃。其它安装使用地点的海拔高度不得超过2000米,超过1000米的应对电动机容量进行校核。
五、起重机5t、8t、10t、12.5t,所有跨度:起重机16/3.2t,跨度18m、22m、26m; 起重量 20/5t,跨度
18m、22m的起重机下横梁结构为右图。
| 起重量 |
T |
5 |
8 |
10 |
12.5 |
16/3.2 |
20/5 |
25/5 |
| 工作制度 |
|
A5或A6 |
| 跨度 |
m |
18 |
22 |
26 |
30 |
35 |
18 |
22 |
26 |
30 |
35 |
18 |
22 |
26 |
30 |
35 |
18 |
22 |
26 |
30 |
35 |
18 |
22 |
26 |
30 |
35 |
18 |
22 |
26 |
30 |
35 |
18 |
22 |
26 |
30 |
35 |
|
起重机总重 |
A5 |
kg |
51441 |
56292 |
690177 |
68180 |
76781 |
54443 |
59416 |
67380 |
72762 |
82036 |
54802 |
60934 |
68452 |
74858 |
83034 |
57593 |
65474 |
71569 |
78406 |
85678 |
72333 |
77662 |
86560 |
93855 |
108283 |
74347 |
82723 |
92112 |
110237 |
11263 |
82649 |
91281 |
98716 |
116263 |
127956 |
| A6 |
5192 |
5677 |
6066 |
6866 |
7726 |
54778 |
59751 |
67716 |
73097 |
82370 |
65054 |
61186 |
68704 |
75120 |
83286 |
58029 |
65910 |
72005 |
78841 |
86113 |
72780 |
78110 |
87008 |
94303 |
108731 |
74813 |
83289 |
92676 |
110936 |
11320 |
83516 |
92148 |
99584 |
171311 |
128823 |
|
最大轮压 |
A5 |
KN |
239 |
255 |
269 |
297 |
328 |
269 |
286 |
314 |
334 |
365 |
287 |
308 |
333 |
357 |
387 |
313 |
341 |
364 |
388 |
312 |
393 |
411 |
441 |
244 |
266 |
443 |
476 |
261 |
273 |
288 |
262 |
268 |
274 |
283 |
298 |
| A6 |
241 |
258 |
271 |
299 |
334 |
270 |
287 |
315 |
335 |
366 |
288 |
309 |
334 |
358 |
388 |
315 |
342 |
365 |
389 |
313 |
394 |
412 |
442 |
245 |
267 |
444 |
477 |
262 |
262 |
289 |
263 |
269 |
275 |
284 |
299 |
| 荐用轨道型号 |
|
|
43.50kg/m |
|
起升高度 |
主 |
|
11 |
11 |
11 |
11 |
11 |
11 |
11 |
| 副 |
\ |
\ |
\ |
\ |
11.7 |
11.6 |
11.8 |
| 速度 |
起升 |
主 |
|
11.3(M5) 15.3(M6) |
9.8(M5) 15.1(M6) |
8.14(M5) 15.14(M6) |
7.82(M5) 16.7(M6) |
9.56(M5) 15.14(M6) |
9.14(M5) 14.45(M6) |
9.4(M5) 13.1(M6) |
| 副 |
\ |
\ |
\ |
\ |
19.34 |
19.48 |
19.5 |
| 小车运行 |
37.2 |
43.76 |
49.99 |
44.16 |
44.18 |
44.18 |
38.15 |
| 起重机运行 |
M5 |
39.56 |
48.42 |
39.56 |
48.42 |
39.56 |
48.42 |
39.56 |
48.42 |
49.08 |
46.25 |
49.08 |
46.25 |
40.07 |
| M6 |
39.98 |
48.57 |
39.88 |
48.57 |
39.98 |
48.57 |
39.98 |
48.57 |
49.44 |
46.75 |
49.44 |
46.75 |
40.20 |
|
主要尺寸 |
L |
|
6838 |
7838 |
8838 |
10162 |
11662 |
6842 |
7842 |
8842 |
10166 |
11666 |
6838 |
7838 |
8838 |
9838 |
11262 |
6838 |
7838 |
8838 |
9838 |
11262 |
8258 |
9258 |
10462 |
11962 |
13962 |
8258 |
9258 |
10462 |
11962 |
13962 |
8258 |
9258 |
10462 |
11962 |
13962 |
| S1 |
|
4500 |
5500 |
6500 |
7500 |
8500 |
4500 |
5500 |
6500 |
7500 |
8500 |
4500 |
5500 |
6500 |
7500 |
8500 |
4500 |
5500 |
6500 |
7500 |
8500 |
5000 |
6000 |
7000 |
8000 |
9000 |
5000 |
6000 |
7000 |
8000 |
9000 |
5000 |
6000 |
7000 |
8000 |
9000 |
| S2 |
|
4500 |
5500 |
6500 |
7500 |
8500 |
4500 |
5500 |
6500 |
7500 |
8500 |
4500 |
5500 |
6500 |
7500 |
8500 |
4500 |
5500 |
6500 |
7500 |
8500 |
5000 |
6000 |
7000 |
8000 |
9000 |
5000 |
6000 |
7000 |
8000 |
9000 |
5000 |
6000 |
7000 |
8000 |
9000 |
| H3 |
|
10694 |
10694 |
10694 |
10976 |
11226 |
10694 |
10694 |
10694 |
10976 |
11226 |
11214 |
00364 |
11264 |
11466 |
11376 |
11214 |
11114 |
11314 |
11226 |
11326 |
11244 |
11294 |
11603 |
11612 |
11712 |
11294 |
11496 |
11512 |
11132 |
11232 |
11362 |
11512 |
11612 |
11232 |
11332 |
| H |
|
14870 |
14870 |
14870 |
15000 |
15280 |
14870 |
14870 |
14870 |
15000 |
15280 |
15390 |
15390 |
15520 |
15800 |
15560 |
15390 |
15520 |
15800 |
15560 |
15560 |
15860 |
16126 |
15860 |
16126 |
15546 |
15846 |
16126 |
16426 |
15946 |
|
| h |
|
660 |
722 |
662 |
722 |
662 |
766 |
622 |
766 |
766 |
573 |
766 |
573 |
573 |
660 |
| BQ |
|
8500 |
9100 |
9100 |
9100 |
9500 |
8500 |
10000 |
9000 |
9000 |
|
| B1 |
|
650 |
770 |
650 |
770 |
650 |
770 |
650 |
770 |
770 |
1653 |
770 |
1610 |
1653 |
1673 |
| B |
|
10109 |
10349 |
10709 |
10949 |
10709 |
10949 |
10709 |
10949 |
11349 |
11305 |
11849 |
11769 |
11805 |
11845 |
| I |
|
|
847 |
836 |
847 |
| 电源 |
|
三相交流3-Phase AC 380V
50Hz |
| 起重量 |
主起升 |
副起升 |
小车运行 |
起重机运行 |
| 5 |
M5 |
YZR160M2-6 8.5KW |
\
|
2×YZR160M2-6
(S=18、22、26m) |
2×8.5KW |
2×YZR160L-6
(S=30、35m) |
2×13KW |
| M6 |
YZR180L-6 15KW |
2×7.5KW |
2×11KW |
| 8 |
M5 |
YZR160L-6 15KW |
\
|
2×YZR160M2-6
(S=18、22m) |
2×8.5KW |
2×YZR160L-6
(S=26、30、35m) |
2×13KW |
| M6 |
YZR225M-8 22KW |
2×7.5KW |
2×11KW |
| 10 |
M5 |
YZR160L-6 13KW |
\ |
2×YZR160M2-6
(S=18、22、26m) |
2×8.5KW |
2×YZR160L-6
(S=2630、35m) |
2×13KW |
| M6 |
YZR225M-8 22KW |
2×7.5KW |
2×11KW |
| 12.5 |
M5 |
YZR200L-8 18.5KW |
\ |
2×YZR160M2-6
(S=18m) |
2×8.5KW |
2×YZR160L-6
(S=22、26m) |
2×13KW |
2×YZR180L-6
(S=30、35m) |
2×17KW |
| M6 |
YZR250M1-8 30KW |
2×7.5KW |
2×11KW |
2×15KW |
| 16/3.2 |
M5 |
YZR225M-8 26KW |
YZR160M2-6
8.5KW |
2×YZR180L-6
(S=18、22、26m) |
2×17KIW |
4×YZR160M2-6
(S=30、35m) |
4×8.5KIW |
| M6 |
YZR280S-10 37KW |
2×15KIW |
4×7.5KIW |
| 20/5 |
M5 |
YZR225M-8 26KW |
YZR180L-8 13KW |
2×YZR180L-6
(S=18、22m) |
2×17KIW |
4×YZR160M2-6
(S=26、30、35m) |
4×8.5KIW |
| M6 |
YZR280M-10 45KW |
2×15KIW |
4×7.5KIW |
| 20/5 |
M5 |
YZR250M2-8 42KW |
YZR180L-8 13KW |
4×YZR160M2-6
(S=18、22、26m) |
4×8.5KIW |
4×YZR160L-6
(S=30、35m) |
4×13KIW |
| M6 |
YZR315S-10 55KW |
4×7.5KIW |
4×11KIW |
|