|
QZ型5-20吨抓斗桥式起重机

QZ型抓斗桥式起重机适用冶金、水泥、化工及其它企业的仓库和车间在室内或露天和固定跨间从事矿石、石灰石、矿粉、焦炭、煤砂等散粒物的搬运工作。
本机属于重级(A6)工作制度,起重量包括抓斗自重。
本机由箱形桥架、大车运行机构、小车、抓斗、电气设备五部分组成,全部机构均在操纵室内操纵。
取物装置为双卷筒的四绳抓斗,结构简单工作可靠。抓斗可在任一高度张开和闭合,当抓取物料颗粒在100mm以下时效果好,生产效率高,当抓取物颗粒大干200mm时需选用带齿抓斗。
抓斗更适用于自然堆积状态下的散粒物料,当抓取水下物料或特殊物料时须在定货的特别提出,当露天使用须带防水设备。
|
起重量 |
t |
5 |
10 |
|
跨度 |
m |
10.5 |
13.5 |
16.5 |
19.5 |
22.5 |
25.5 |
28.5 |
31.5 |
10.5 |
13.5 |
16.5 |
19.5 |
22.5 |
25.5 |
28.5 |
31.5 |
|
起升高度 |
20 |
18 |
| 速度 |
起升 |
m/min |
40.1 |
40.2 |
| 小车 |
44.5 |
45.6 |
| 大车 |
室内 |
93.7 |
112 |
111.3 |
101 |
| 室外 |
115.5 |
112 |
111.3 |
101 |
| 电动机 |
起升 |
型号/kw |
YZR225M-8/22 |
YZR280S-10/37 |
| 小车 |
YZR132M2-6/3.7 |
YZR132M1-6/2.2 |
| 大车 |
室内 |
YZR160M1-6(5.5×2) |
YZR160M2-6(7.5×2) |
YZR160M1-6(5.5×2) |
YZR160M2-6(7.5×2) |
| 室外 |
YZR160M1-6(5.5×2) |
YZR160M2-6(7.5×2) |
YZR160M1-6(5.5×2) |
YZR160M2-6(7.5×2) |
|
工作级别 |
|
43Kg/m |
A6 |
|
总重 |
室内 |
t |
17.5 |
19 |
20.9 |
23.6 |
26.4 |
31.1 |
34.5 |
37.4 |
25.1 |
26.7 |
28.8 |
32.9 |
35.4 |
40 |
43.4 |
46.7 |
| 室外 |
18.5 |
19.7 |
21.6 |
24.4 |
27.2 |
31.8 |
35.2 |
38.1 |
25.9 |
27.5 |
29.6 |
33.7 |
36.3 |
40.8 |
44.2 |
47.5 |
| 最大轮压 |
吸重 |
室内 |
|
7.5 |
8.3 |
8.9 |
9.7 |
10.5 |
11.6 |
12.5 |
13.4 |
11.7 |
12.6 |
13.3 |
14.5 |
15.5 |
16.6 |
17.6 |
18.6 |
| 自重 |
室外 |
7.9 |
8.7 |
9.8 |
10.1 |
10.9 |
12 |
12.9 |
13.8 |
12 |
12.9 |
13.7 |
15 |
15.9 |
17.1 |
18.1 |
19.1 |
|
荐用钢轨 |
|
43Kg/m |
43Kg/m:QU70 |
|
电源 |
|
三相交流 380V 50Hz |
三相交流 380V 50Hz |
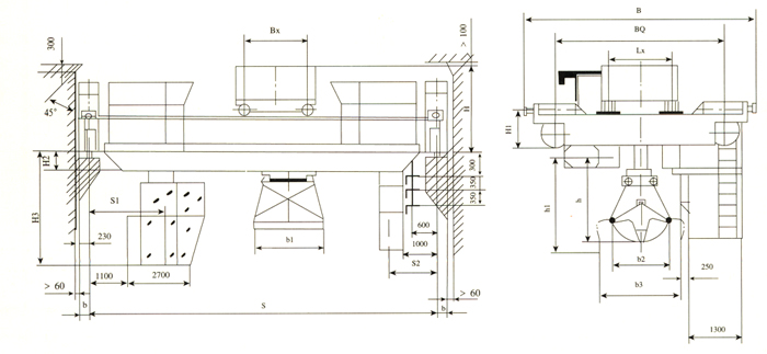
| 主要尺寸 |
|
Lx |
|
2000 |
2000 |
|
BQ |
|
4000 |
4100 |
5000 |
4000 |
4100 |
5000 |
|
BX |
|
2300 |
2900 |
|
B |
|
5570 |
5670 |
6300 |
5600 |
5650 |
6200 |
|
b |
|
230 |
230
260 |
|
H |
|
1877(2747) |
1927(2797) |
2065(2815) |
2185(2905) |
|
H1 |
|
725 |
775 |
775 |
865 |
|
H2 |
|
24 |
126 |
226 |
376 |
528 |
628 |
778 |
928 |
80 |
80 |
180 |
240 |
388 |
538 |
688 |
838 |
|
H3 |
|
2526 |
2546 |
2596 |
2756 |
2906 |
2838 |
2988 |
3138 |
2526 |
2546 |
2596 |
2756 |
2906 |
2886 |
3036 |
3186 |
|
S1 |
|
1000(1800) |
1950(2150) |
|
S2 |
|
1600 |
1600(1800) |
| 抓斗参数 |
| 类型 |
|
轻型 |
中型 |
重型 |
轻型 |
中型 |
重型 |
| 容量 |
m3 |
3 |
1.5 |
1 |
6 |
3 |
2 |
| 物料容量 |
t/m3 |
0.6-0.92 |
1-1.9 |
2.3 |
0.6-1.0 |
1-2 |
2-3 |
| 自重 |
kg |
2419 |
2515 |
2318 |
4243 |
4073 |
3966 |
| 尺寸 |
b1 |
mm |
1852 |
1452 |
1152 |
2256 |
1960 |
1460 |
| b2 |
2470 |
2370 |
2370 |
3080 |
2780 |
2780 |
| b3 |
3000 |
2600 |
2600 |
3700 |
3200 |
3200 |
| h |
2926 |
2867 |
2867 |
3615 |
3315 |
3315 |
| h1 |
3426 |
3452 |
3452 |
4265 |
4015 |
4015 |
|