QD型75/20-100/20吨吊钩桥式起重机

| 工作制度(中级) | ||||||||||||||||
| 主要技术参数 | ||||||||||||||||
|
起重量 |
主钩 |
t |
75 |
100 |
||||||||||||
|
副钩 |
20 |
20 |
||||||||||||||
|
跨度 |
m |
13 |
16 |
19 |
22 |
25 |
28 |
31 |
13 |
16 |
19 |
22 |
25 |
28 |
31 |
|
|
起升高度主/副 |
m |
20/22 |
20/22 |
|||||||||||||
|
速度 |
主钩 |
m/min |
6.7 |
4.6 |
||||||||||||
|
副钩 |
9.23 |
9.23 |
||||||||||||||
|
小车 |
38.3 |
33.3 |
||||||||||||||
|
大车 |
75.1 |
66 |
75.1 |
66 |
||||||||||||
|
电动机 |
主钩 |
型号/KW |
YZR315M-10/85 |
YZR315M-10/85 |
||||||||||||
|
副钩 |
YZR250M1-8/35 |
YZR250M1-8/35 |
||||||||||||||
|
小车 |
YZR180L-8/13 |
YZR180L-8/13 |
||||||||||||||
|
大车 |
YZR200L-8/(2×18.5) |
YZR200L-8/(2×18.5) |
||||||||||||||
|
总重 |
t |
61.694 |
62.749 |
70.078 |
74.489 |
80.747 |
86.078 |
91.288 |
72.548 |
76.524 |
81.617 |
82.637 |
94.59 |
100.37 |
107.86 |
|
|
最大轮压 |
t |
27 |
27.9 |
28.8 |
29.7 |
30.6 |
31.5 |
32.5 |
32 |
33 |
34.3 |
35.5 |
36.8 |
37.6 |
38.8 |
|
|
荐用钢轨 |
QU80;QU100 |
QU80;QU100 |
||||||||||||||
|
电源 |
三相交流 380V 50Hz |
|||||||||||||||
|
主要尺寸 |
||||||||||||||||
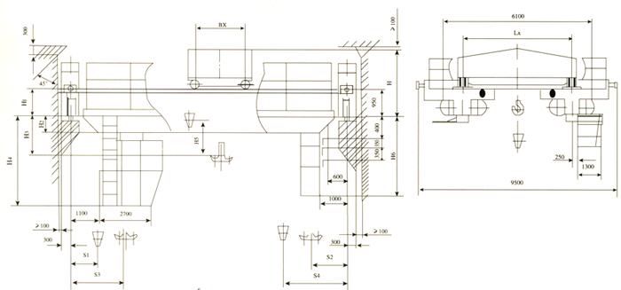
|
BX |
mm |
3400 |
3400 |
|||||||||||||
|
LX |
4400 |
4400 |
||||||||||||||
|
H |
3252 |
3256 |
3258 |
3258 |
3260 |
3262 |
3280 |
3282 |
3284 |
3288 |
3290 |
3292 |
3294 |
|||
|
H1 |
3252 |
1322 |
1324 |
1324 |
1326 |
1328 |
1330 |
1332 |
1334 |
1338 |
1340 |
1342 |
1344 |
|||
|
H2 |
398 |
538 |
542 |
544 |
844 |
846 |
848 |
538 |
540 |
544 |
548 |
848 |
850 |
854 |
||
|
H3 |
1588 |
1584 |
1582 |
1582 |
1580 |
1578 |
1886 |
1884 |
1882 |
1878 |
1876 |
1874 |
1872 |
|||
|
H4 |
2568 |
2708 |
2712 |
2714 |
3014 |
3016 |
3018 |
2708 |
2710 |
2714 |
2718 |
3018 |
3020 |
3024 |
||
|
H5 |
1164 |
1581 |
||||||||||||||
|
S1 |
910 |
1095 |
||||||||||||||
|
S2 |
2300 |
2255 |
||||||||||||||
|
S3 |
2205 |
2570 |
||||||||||||||
|
S4 |
595 |
3730 |
||||||||||||||